Zaawansowane nakładki dla środowisk Autodesk, które automatyzują procesy projektowe, zwiększają efektywność pracy i minimalizują ryzyko błędów. Nasze rozwiązania są tworzone we współpracy z projektantami, co gwarantuje ich praktyczność i dostosowanie do realnych potrzeb branżowych
Nasze nakładki dla architektów i inżynierów budownictwa wspierają procesy projektowe w Autodesk Revit.
Dla inżynierów mechaników przygotowaliśmy nakładki, które integrują Autodesk Inventor z systemami ERP, automatyzują eksport danych i usprawniają zarządzanie dokumentacją.
Oferujemy również narzędzia wspierające współpracę między różnymi branżami. Dzięki tym narzędziom, współpraca między zespołami projektowymi staje się bardziej płynna i efektywna.
Automatyczne opisywanie stolarki nigdy nie było tak proste. MAT Carpentry for Revit może usprawnić Twoje projekty architektoniczne i zaoszczędzić Twój czas. Dzięki temu unikniesz błędów i przyspieszysz proces tworzenia dokumentacji redukując czas do kilkudziesięciu sekund.

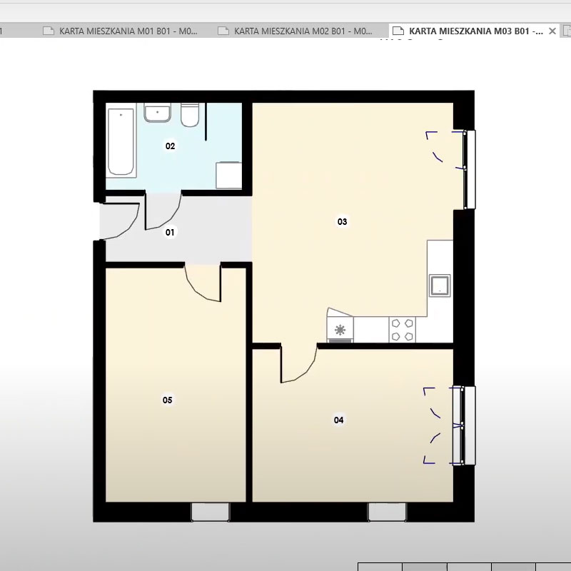
Automatyzacja tworzenia kart mieszkań dzięki aplikacji MAT dla Revit eliminuje czasochłonne, ręczne działania i redukuje ryzyko błędów.

Zestaw skryptów, które zautomatyzują Twoje procesy produkcyjne, uporządkują dane oraz usprawnią uzupełnianie informacji o modelach.

Aplikacja łączącą AutoCAD Plant 3D z programami Revit i Inventor. Umożliwia ona eksport danych z AutoCAD Plant 3D do pozostałych programów.
Zachęcamy do przetestowania naszych nakładek w wersji trial. Dzięki temu możesz przekonać się o ich funkcjonalności i korzyściach, jakie przynoszą w codziennej pracy projektowej. Skontaktuj się z nami, aby uzyskać dostęp do wersji próbnej i dowiedzieć się więcej o naszych rozwiązaniach.
Rozumiemy, że każdy projekt jest unikalny. Dlatego oferujemy możliwość tworzenia nakładek dostosowanych do indywidualnych potrzeb klienta. Nasz zespół specjalistów współpracuje z klientami, aby opracować rozwiązania, które najlepiej odpowiadają ich wymaganiom projektowym.


Dzięki naszym nakładkom Twoje projekty staną się bardziej efektywne, a procesy projektowe – zautomatyzowane i mniej podatne na błędy. Skontaktuj się z nami, aby dowiedzieć się więcej i rozpocząć współpracę.
Zachęcamy do aktywnego udziału w rozwoju naszych narzędzi. Możesz wybrać, które nakładki i funkcje będą przez nas realizowane w pierwszej kolejności – wystarczy, że oddasz swój głos w naszej ankiecie. Twoja opinia realnie wpływa na kierunek, w jakim rozwijamy nasze rozwiązania dla projektantów i inżynierów.
Poznaj dostępne propozycje i zagłosuj na nakładki, które są dla Ciebie najważniejsze lub zgłoś własny pomysł na nowe narzędzie.
Obecnie pracujemy nad:
Nakładką do automatycznego otworowania – dedykowaną branży MEP, która ułatwi współpracę międzybranżową poprzez automatyczne oznaczanie i wymiarowanie otworów instalacyjnych w ścianach i stropach.
Nakładką do obliczeń kubatury i powierzchni – umożliwiającą szybkie zbieranie danych o kubaturze budynku, powierzchniach użytkowych, całkowitych i zabudowy, z pełną zgodnością z aktualnymi normami.